Omschrijving
Unieke Kans: Luxe instapklaar appartement met buitenruimte in een knusse en karakteristieke voormalige school. A+++ energielabel
Ontdek de charme van wonen in een prachtig gerenoveerde oude school. Wij bieden een grote diversiteit aan volledig gemeubileerde en gestoffeerde appartementen, elk uniek in grootte en indeling. Deze appartementen zijn instap klaar; je hoeft alleen je koffer met kleding en je toilettas mee te nemen. Geniet van het gemak en comfort in een karakteristieke omgeving, klaar om direct jouw nieuwe thuis te worden. Mis deze unieke kans niet en beleef het beste van twee werelden: de historische allure van een oude school gecombineerd met het moderne gemak van een instap klaar appartement.
Deze instapklare appartementen zijn deels voorzien van eigen buitenruimtes, ideaal voor een ontspannen moment in de frisse lucht. Het complex ligt op een eigen terrein met veel groen en parkeergelegenheid, waardoor je altijd verzekerd bent van een plekje voor de deur.
Naast de karakteristieke school zijn er 12 splinternieuwe appartementen van 50m² gebouwd. Deze moderne woningen zijn allemaal volledig gestoffeerd en bieden dezelfde hoogwaardige afwerking als de appartementen in de oude school.
Alle appartementen in Blok T | atelierlofts zijn optimaal geïsoleerd, gasloos en voorzien van zonnepanelen, wat bijdraagt aan een duurzame en milieuvriendelijke leefomgeving. Zo combineer je mooi wonen met duurzaamheid. Fijn wonen staat hier centraal.
Locatie:
Prachtige appartementen in een groene omgeving, terwijl je toch in de buurt bent van alle benodigde voorzieningen. Deze charmante woningen zijn een perfecte keuze voor wie op zoek is naar een rustige woonplek. Het complex ligt aan een sfeervol plantsoen, waar je kunt genieten van de rust en de natuur direct voor de deur.
Gelegen nabij de ringbanen, biedt Blok T gemakkelijke toegang tot alle voorzieningen, zoals diverse winkels, supermarkten, scholen en sportverenigingen. Het bruisende centrum van Tilburg, het NS-station en de hippe Spoorzone zijn op loop- en fietsafstand.
Mis deze unieke kans niet om een woning te bemachtigen in deze groene en rustige omgeving!
Appartement:
Dit prachtige appartement is voorzien van een PVC vloerafwerking en een inrichtingspakket van € 3.000,--. Compleet gemeubileerd met inventaris en gestoffeerd kunt u deze woning betrekken.
Indeling:
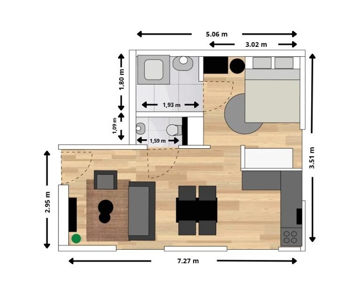
Welkom in dit fijne appartement waar comfort en gemak perfect samenkomen. Je komt direct binnen in de knusse woonkamer, die naadloos overloopt in de eethoek en de open keuken. Dankzij de open indeling voelt de ruimte licht en ruim aan: een heerlijke plek om te ontspannen of gezellig te koken. De keuken is compleet uitgerust met een koelkast, combi-oven, inductiekookplaat met recirculatiekap en uiteraard een vaatwasser.
Vanuit de leefruimte bereik je de ruime slaapkamer, met volop plek voor een tweepersoonsbed en een grote kast. Aangrenzend ligt de badkamer, voorzien van een douche, wastafel en wasmachine. Het separate toilet met hangend closet en fonteintje maakt het geheel extra comfortabel.
Een praktisch en sfeervol appartement, ideaal voor wie zorgeloos wil wonen en op zoek is naar een plek die van alle gemakken is voorzien.
Algemeen:
• Het complex bevat 12 nieuwe appartementen van ongeveer 50 m² en 22 prachtige lofts in een bestaand schoolgebouw, variërend van 35-75 m².
• Alle lofts en appartementen zijn in 2020 instap klaar opgeleverd. Ze zijn voorzien van mooie PVC-vloeren, complete keukens en verlichting. Daarnaast zijn de lofts gemeubileerd en voorzien van een televisie.
• Parkeergelegenheid op eigen terrein is beschikbaar en de aankoop van een parkeerplaats is bespreekbaar (á €12.500,-). Parkeerplaatsen in de omgeving zijn voor vergunninghouders.
• Vrije parkeerplaats met laadpaal.
• Authentieke kenmerken zoals hoge plafonds, grote ramen en originele houten balken.
• De keukens zijn modern en strak, uitgerust met moderne apparatuur.
• De badkamers zijn voorzien van hangende toiletten, douches, wastafels en inclusief wasmachine.
• Er zijn meerdere fietsenbergingen en een containerhok. De eigen meterkasten zijn centraal buiten de appartementen gelegen.
• Energiezuinige woningen met energielabel A++, 1 zonnepaneel en gasloos gebouwd wat resulteert in lagere maandelijkse kosten voor energieverbruik.
• De Vve is recent opgericht en de servicekosten bedragen € 73,71 per maand.
• De oplevering is op korte termijn en zal plaatsvinden via projectnotaris Marks Wachters notarissen. Om het proces spoedig te laten verlopen vragen we koper om een financiële toetsing door de Hypotheekshop aan de Spoorlaan of de Kijkduinlaan.
Kenmerken
| Postcode | 5046 NC |
| Vraagprijs | € 240.000 k.k. |
| Bouwjaar | 2020 |
| Woonoppervlakte | 36 m2 |
| Inhoud | 100 m3 |
| Aantal kamers | 2 |
| Aantal slaapkamers | 1 |
| Energielabel | A_PPPWat betekent dit? |
| Berging | Nee |
| Garage | Nee |
Neem contact met ons op en wie weet ben jij binnenkort eigenaar van deze mooie woning.